skip to main content
EN
English
Link to Homepage
Our Plans
The Site
Approved Scheme
Approved Plans
Approved Landscape Design
Approved Views
Proposed Amendments
Proposed Views
JLP Homes
JLP & Home Rental
Our Homes
Key Benefits
Community
Community Partnerships
Sustainability
Construction and Logistics
Indicative Timeline
Contact
Our Plans
The Site
Approved Scheme
Approved Plans
Approved Landscape Design
Approved Views
Proposed Amendments
Proposed Views
JLP Homes
JLP & Home Rental
Our Homes
Key Benefits
Community
Community Partnerships
Sustainability
Construction and Logistics
Indicative Timeline
Contact
Open Device Menu
Close Device Menu
Approved Plans
Main Content
Site Plan
Enlarge
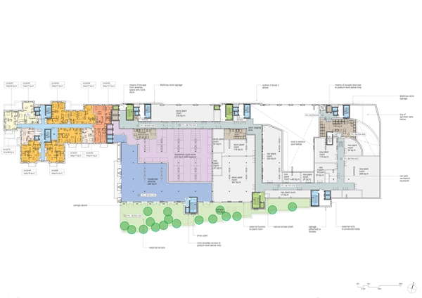
Ground Floor Plan
Enlarge
First Floor Plan
Enlarge
Second Floor Plan
Enlarge
Third Floor Plan
Enlarge
Floors 4 - 6
Enlarge
Section looking north through the building
Enlarge
Section looking east through the building
Enlarge
Site Plan
Ground Floor Plan
First Floor Plan
Second Floor Plan
Third Floor Plan
Floors 4 - 6
Section looking north through the building
Section looking east through the building
Approved Plans
Back to top